Zhejiang Jhenten Machinery Co.,Ltd.
Name:Henson.Zeng
Phone:+86 15957782988
Tel:+86 577-86867777
Email:[email protected]
No.808 Haitong Road, Binhai Development Zone, Wenzhou City
Evaporative concentrator

FALLING FILMEVAPORATOR

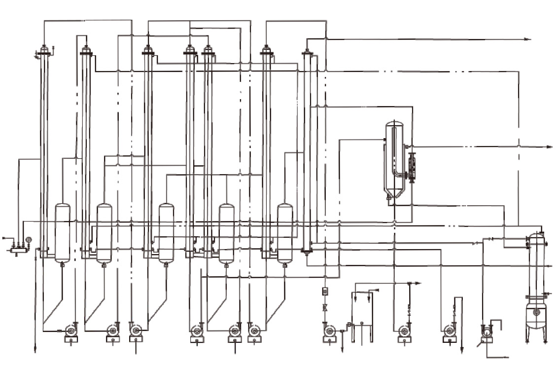
Multi-Effect Falling Film Evaporator Flow Diagram

Techincal Parameter
Model | Double-e?ect | Triple-e?ect | Four-e?ect | Five-e?ect |
Water evaporating capacityKg /h | 1200-4000 | 3600-15000 | 8000-50000 | 10000-65000 |
Feed Material Density% | According to material | |||
Discharge MaterialDensity% | According to material | |||
Steam pressure Mpa | 0.5~0.8 | |||
Steam consumptionKg /kg evaporation amount(with heat pressure pump) | 0.38 | 0.28 | 0.23 | 0.19 |
Evaporating temperature℃ | 45~90 | |||
Sterilizing temperature℃ | 90~110 | |||
Cooling water costT/T evaporation
amount | 11 | 8 | 7 | 6 |
Note:We can design and manufacture according to customers special requirement.
Welcome to send an online inquiry! If you have any suggestions or questions about our products, you can Email us.[email protected], also feedback through this inquiry; we will reply to you within 24 hours. (Monday to Friday, 9:00-17:30)
Other Products
We focus on the sanitary pressure vessels, process tanks and modular system design and manufacture.




